Nieuw in verkoop:Waterloweg 56, 6713 AT Ede - Foto
Nieuw in verkoop
+52

Waterloweg 56 6713 AT Ede € 550.000,- k.k.

  • Woonhuis
  • 5 kamers
  • 4 slaapkamers
  • 1 badkamers
  • Bouwjaar 1930
  • 395 m² perceeloppervlakte
  • 117 m² gebruiksoppervlakte
  • D Energielabel D

Beschrijving

Heeft u altijd al willen wonen in een charmante vrijstaande jaren ’30 woning met volop ruimte, karakter én mogelijkheden om het geheel naar eigen smaak te moderniseren? Dan is deze leuke woning aan de Waterloweg 56 in Ede absoluut het bekijken waard.

Deze vrijstaande woning is aan de achterzijde uitgebouwd en beschikt over een oprit en een riante stenen garage van circa 23 m². Een groot pluspunt is dat zich op de begane grond zowel een slaapkamer als een badkamer bevinden, waardoor de woning desgewenst ook levensloopbestendig is. Een huis met karakter, ruimte en flexibiliteit, op een fijne locatie dichtbij het centrum.

De Waterloweg 56 ligt in een prettige woonstraat op korte afstand van het centrum van Ede. Binnen enkele minuten staat u in de winkelstraat met een breed aanbod aan winkels, voorzieningen en horeca. Ook scholen, sportvoorzieningen, busverbindingen en NS-station Ede-Centrum bevinden zich in de directe omgeving.

Indeling
Begane grond:
Entree, hal met trapkast, meterkast en een karakteristieke bordestrap. Vanuit de hal heeft u toegang tot de provisiekelder (met meterkast), een slaapkamer en de woonkamer. De knusse woonkamer is circa 29 m² groot en beschikt aan de rechterzijde over een kleine erker. De originele deurkozijnen en paneeldeuren zorgen voor de typische jaren ’30 sfeer.

Vanuit de woonkamer bereikt u de royale woon-/leefkeuken van maar liefst 22 m². Het keukenblok is opgesteld in een L-vorm en voorzien van diverse inbouwapparatuur. Er is volop ruimte voor een grote eettafel en u kijkt hier prettig uit over de achtertuin.

Aangrenzend aan de woonkeuken bevinden zich de bijkeuken en de badkamer. De badkamer is uitgerust met een wastafel, inloopdouche, badkamermeubel en een designradiator. In de bijkeuken vindt u de C.V.-installatie, de aansluiting voor de wasmachine, een vaste kast en een deur naar de achtertuin.

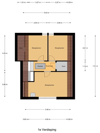
Eerste verdieping:
Overloop met toegang tot drie flinke slaapkamers, een inloopkast en een vliering die bereikbaar is middels een vlizotrap. De ouderslaapkamer is gelegen aan de voorzijde van de woning en is circa 15 m² groot.

Garage en berging:
Naast de woning staat een royale stenen garage met overheaddeur en vliering. De garage is circa 7,9 meter diep en 2,91 meter breed, voorzien van elektra en beschikt aan de achterzijde over een deur naar de achtertuin. Daarnaast is er in de tuin nog een ruime berging aanwezig.

Tuin:
De achtertuin is gelegen op het noordwesten, keurig aangelegd en grotendeels bestraat. Gemeten vanaf de garage is de tuin circa 7,5 meter breed en circa 13,5 meter diep. Aan de rechterzijde bevindt zich een poort naar de oprit. De totale breedte van het perceel bedraagt circa 11 meter. Een tuin met veel ruimte en volop mogelijkheden.

Bijzonderheden:
• Woonoppervlakte: 117 m²
• Perceeloppervlakte: 395 m²
• Inhoud: 468 m³
• Bouwjaar: 1930
• Energielabel: D
• Grotendeels voorzien van isolatieglas
• Gedeeltelijk dakisolatie
• Vloerisolatie
• C.V.-installatie: Nefit Trendline, bouwjaar 2021 (eigendom)
• Airco in de keuken
• Meterkast vervangen in 2023/2024
• Oplevering medio half april 2026

Kortom: een charmante vrijstaande woning met karakter, ruimte en een uitstekende ligging, die met wat modernisering kan worden omgetoverd tot een fantastisch thuis. Een unieke kans voor wie vrijstaand wil wonen nabij het centrum van Ede.

Kaart

Kenmerken

Overdracht

Referentienummer
00131
Vraagprijs
€ 550.000,- k.k.
Status
Nieuw in verkoop
Aanvaarding
In overleg
Aangeboden sinds
Woensdag 11 februari 2026

Bouw

Type object
Woonhuis, eengezinswoning, vrijstaande woning
Soort bouw
Bestaande bouw
Bouwperiode
1930
Dakbedekking
Dakpannen
Type dak
Zadeldak
Isolatievormen
Dakisolatie
Grotendeels dubbel glas
Vloerisolatie

Oppervlaktes en inhoud

Perceeloppervlakte
395 m²
Woonoppervlakte
117 m²
Inhoud
468 m³
Oppervlakte overige inpandige ruimten
5 m²
Oppervlakte externe bergruimte
53 m²

Indeling

Aantal bouwlagen
2
Aantal kamers
5 (waarvan 4 slaapkamers)
Aantal badkamers
1 (en 1 apart toilet)

Locatie

Ligging
Aan rustige weg
Dichtbij openbaar vervoer
Nabij school

Tuin

Type
Achtertuin
Hoofdtuin
Ja
Oriëntering
Noord west
Staat
Normaal
Tuin 2 - Type
Achtertuin
Tuin 2 - Oriëntering
Zuidoost
Tuin 2 - Staat
Normaal

Energieverbruik

Energielabel
D

CV ketel

CV ketel
Nefit Trendline
Warmtebron
Gas
Bouwjaar
2021
Combiketel
Ja
Eigendom
Eigendom

Uitrusting

Aantal parkeerplaatsen
3
Warm water
CV-ketel
Verwarmingssysteem
Centrale verwarming
Ventilatie methode
Mechanische ventilatie
Natuurlijke ventilatie
Parkeergelegenheid
Vrijstaande stenen garage
Heeft airco
Ja
Tuin aanwezig
Ja
Heeft een garage
Ja
Telefoonaansluiting aanwezig
Ja
Beschikt over een internetverbinding
Ja
Heeft schuur/berging
Ja
Heeft ventilatie
Ja

Kadastrale gegevens

Kadastrale aanduiding
Ede K 15473
Perceeloppervlakte
395 m²
Omvang
Geheel perceel
Eigendomsituatie
Eigen grond

Media

Virtuele tour

Plattegronden

Brochure(s) en overige bijlagen

Waterloweg 56, 6713 AT EDE (1) Download
Video Download
Wat is jouw huis waard?

Wat is jouw huis waard?

Laat gratis en vrijblijvend de waarde van je woning bepalen.

  • Snel inzicht
  • Geen verplichtingen
  • Persoonlijk advies
Vraag nu je gratis waardebepaling aan!